Detail projektu – Dáme na vás

Klubovna mladých hasičů, dětí a maminek

v realizaci

Michal Kinc

4 990 000 Kč (navržený)

Děti

Brno-Vinohrady

2025

Hlavní náplní projektu je vytvoření multifunkčního prostoru pro výchovu a vzdělávání mladých hasičů, členů SDH a veřejnosti v oblasti prevence a požární ochrany. Dále plánujeme zpřístupnění klubovny maminkám s dětmi.

Úspěšný oddíl mladých hasičů SDH na Vinohradech čítá téměř 100 dětí v různých kategoriích, od předškolních dětí tzv. přípravky až po středoškoláky v dorostu. Prostory, ve kterých se s těmito nadšenými mladými hasiči-sportovci v odpoledních hodinách denně scházíme, jsou natolik malé a nevyhovující, že výrazně omezují kvalitu našich pravidelných schůzek.

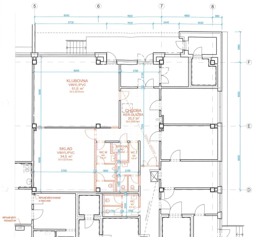
Projekt počítá s rekonstrukcí stávajících prostor využívaných SDH, které slouží jako hasičská klubovna a zázemí pro členy. Po rekonstrukci předpokládáme, že bude sloužit jako hasičská klubovna a multifunkční zázemí pro výchovu a vzdělávání mladých hasičů, ale také jako důležité komunitní centrum pro přípravu nejrůznějších společenských, kulturních a vzdělávacích akcí pro veřejnost.

Zároveň chceme prostor využívat i dopoledne – maminky s malými dětmi hledají místo, kde by se mohly bezpečně a příjemně scházet, zejména v zimních měsících nebo za nepříznivého počasí. To jim umožní právě rozšířená a upravená klubovna.

Větší a lepší zázemí nám pomůže otevřít dveře novým malým sportovcům, uspokojit velký zájem dětí a rodičů z Vinohrad i okolních městských částí a nabídnout jim smysluplné, aktivní a kolektivní trávení volného času.

Součástí projektu bude i vybudování skladových prostor pro uskladnění techniky a materiálu pro činnost SDH a pořádané akce a nezbytného hygienického zázemí.
Veřejný prospěch projektu: Projekt umožní rozšířit činnost úspěšného oddílu mladých hasičů, nabídnout více dětem z Vinohrad i ostatních městských částí smysluplné trávení volného času a zároveň vytvořit prostor pro setkávání maminek s dětmi v bezpečném a přívětivém prostředí. Také podpoří komunitní život, mezigenerační spolupráci a dobrovolnictví, zlepší podmínky činnosti hasičů, umožní maminkám s dětmi sdílení zkušeností a tím přispěje k rozvoji aktivního a bezpečného života v obci.
Datum Popis
leden 2026

Schválení rozpočtového opatření a realizátora projektu: Magistrát města Brna – Odbor participace (Zastupitelstvo města Brna dne 20. ledna 2026).

únor 2026

Probíhá příprava veřejné zakázky na zpracování projektové dokumentace pro stavební povolení. 

březen 2026

Byla vyhlášena veřejná zakázka na zpracování projektové dokumentace pro stavební povolení a projektové dokumentace pro provedení stavby vč. inženýrské činnosti a autorského dozoru.

duben 2026

Byl vybrán zhotovitel projektové dokumentace pro stavební povolení a projektové dokumentace pro provedení stavby vč. inženýrské činnosti a autorského dozoru.

Rozpočet

Popis položky Počet jednotek Cena za jednotku Cena celkem
projektová dokumentace 1 200 000 Kč 200 000 Kč
stavební práce vč. drobné rezervy 1 4 290 000 Kč 4 290 000 Kč
základní vybavení 1 500 000 Kč 500 000 Kč
Cena celkem 4 990 000 Kč

Roční provozní náklady

Popis položky Počet jednotek Cena za jednotku Cena celkem
Na provozních nákladech se bude podílet MČ. 3 0 Kč 0 Kč
Cena celkem 0 Kč
Subjekt Odůvodnění Závěr
Odbor investiční S ohledem na skutečnost, že aktuální stav stávajícího objektu není znám, nelze provést objektivní posouzení. Proveditelné
Odbor zdraví Při úpravách veřejných prostranství je nutné respektovat požadavky na bezbariérové užívání. V případě realizace bude projekt dále konzultován s Poradním sborem Rady města Brno pro bezbariérové Brno, jak ve fázi přípravy a projektování, tak i během realizace. Proveditelné
Majetkový odbor Pozemek p.č. 9047/23 a 9047/41 k.ú. Židenice je svěřen MČ Brno-Vinohrady. Budova školy, stavba Židenice č.p. 4226 ve vlastnictví statutárního města Brno (SmB), leží na pozemcích SmB a v části ve vlastnictví fyzické osoby.  Proveditelné
MČ Brno-Vinohrady Městská část souhlasí s realizací projektu na svém území. Proveditelné